top of page

Create Your First Project
Start adding your projects to your portfolio. Click on "Manage Projects" to get started
STUDIO 4
Date
Mar 22 - Jul 22
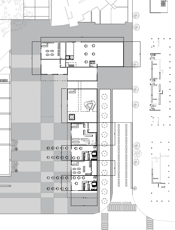
This project takes place in the historic center of the city of Rishon Lezion. The historic urban tissue of the 1880's colony was disrupted during the 1990's by 3 large scale buildings with varying programs. That late development left a field empty right next to the new municipal building that is disconnected from the rest of the area by a tunnel entrance to the city hall's underground parking. This project involved relocating the entrance and creating a new town square for the city and combining it with a multi use structure that bridges the scale of the historic and post modern architecture.










bottom of page

